
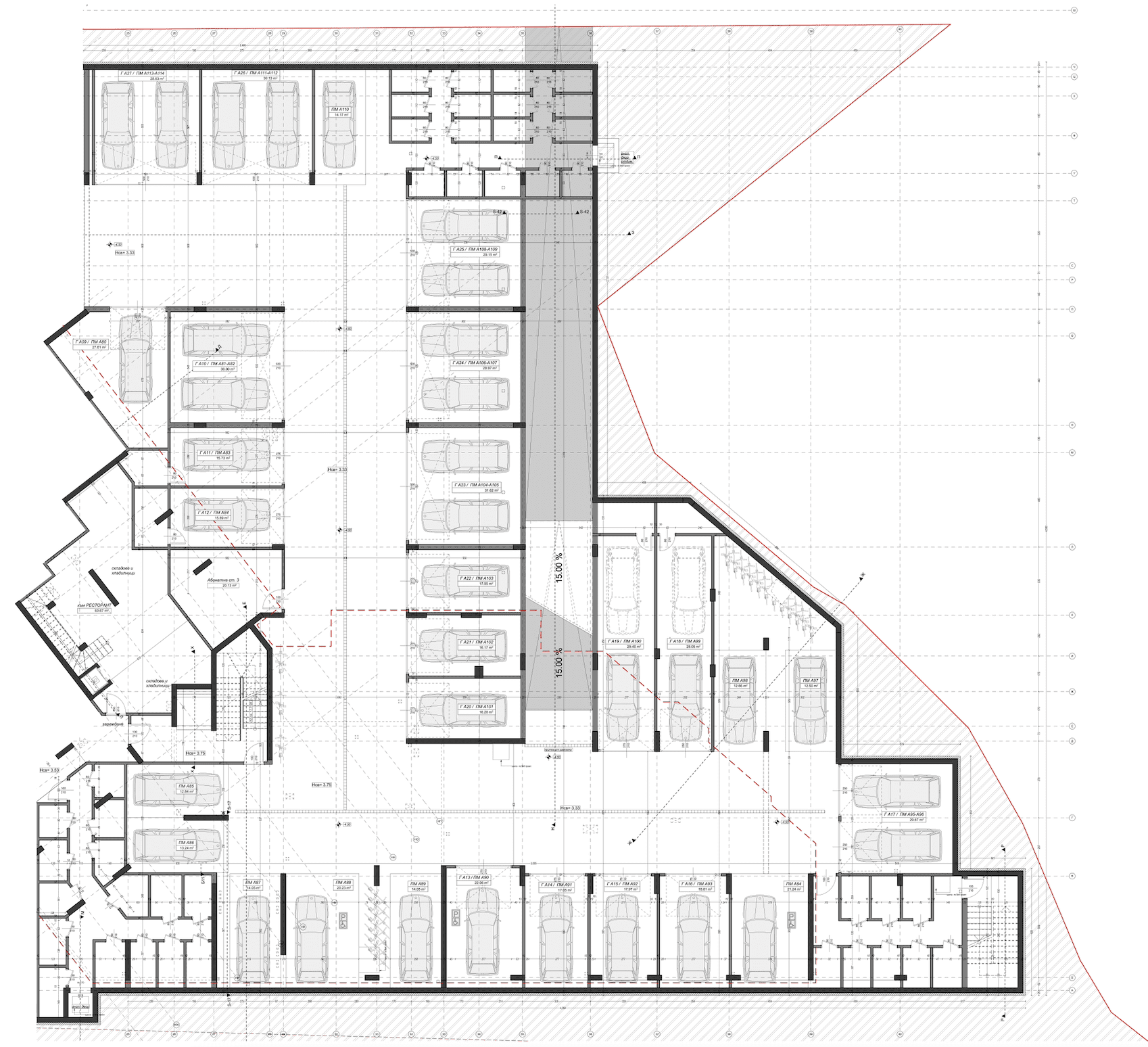
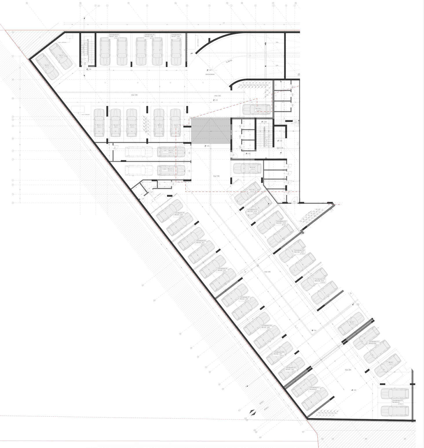
Жилищен комплекс с търговски площи, ресторант и подземни гаражи, разположена в близост до Бизнес Парк София. Проектът има модерен дизайн, подходящ за съвременното строителство, като предоставя изключителен комфорт при живеене и всички необходими удобства за модерния градски живот.
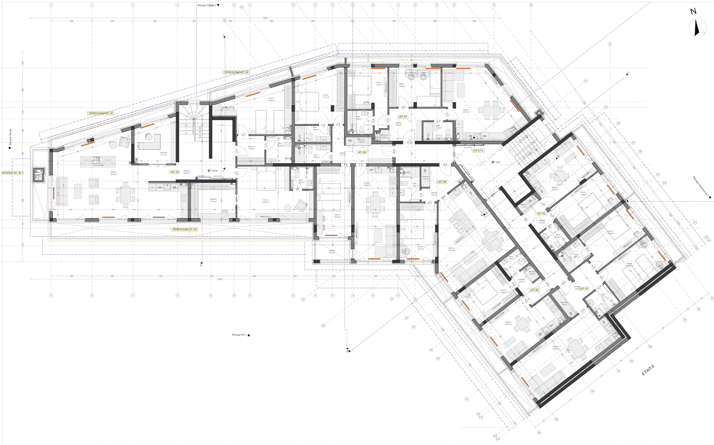
Сградата въздейства с иновативен дизайн, модерна фасада и интересни архитектурни решения. Апартаментите в нея са проектирани, за да осигурят на собствениците си функционалност, уют, простор и много светлина. При изграждането на проекта са използвани висококачествени материали и технологии.
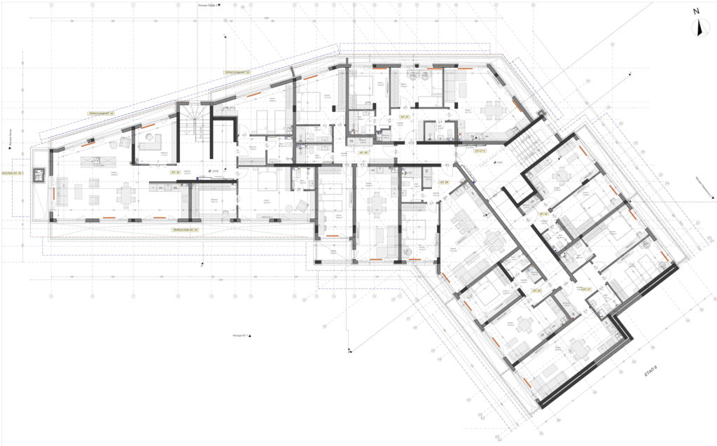
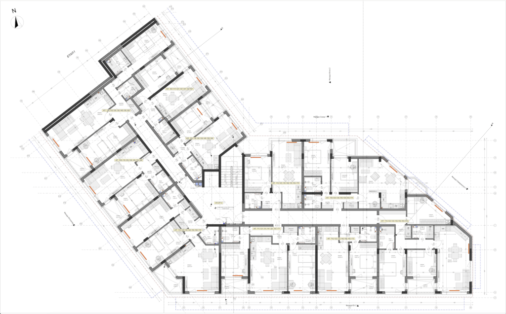
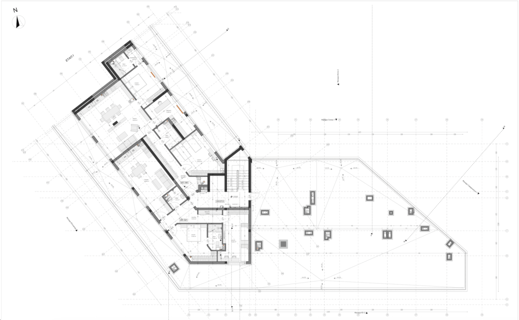
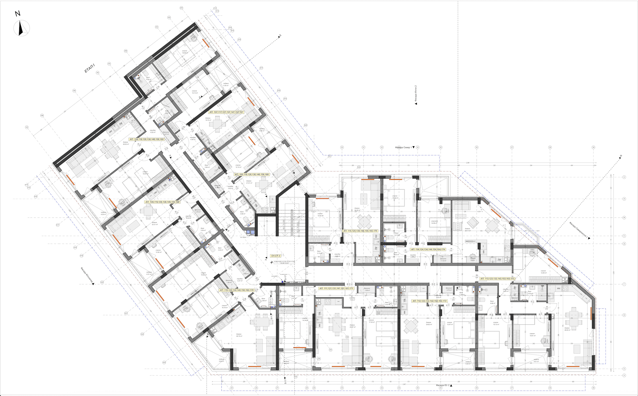
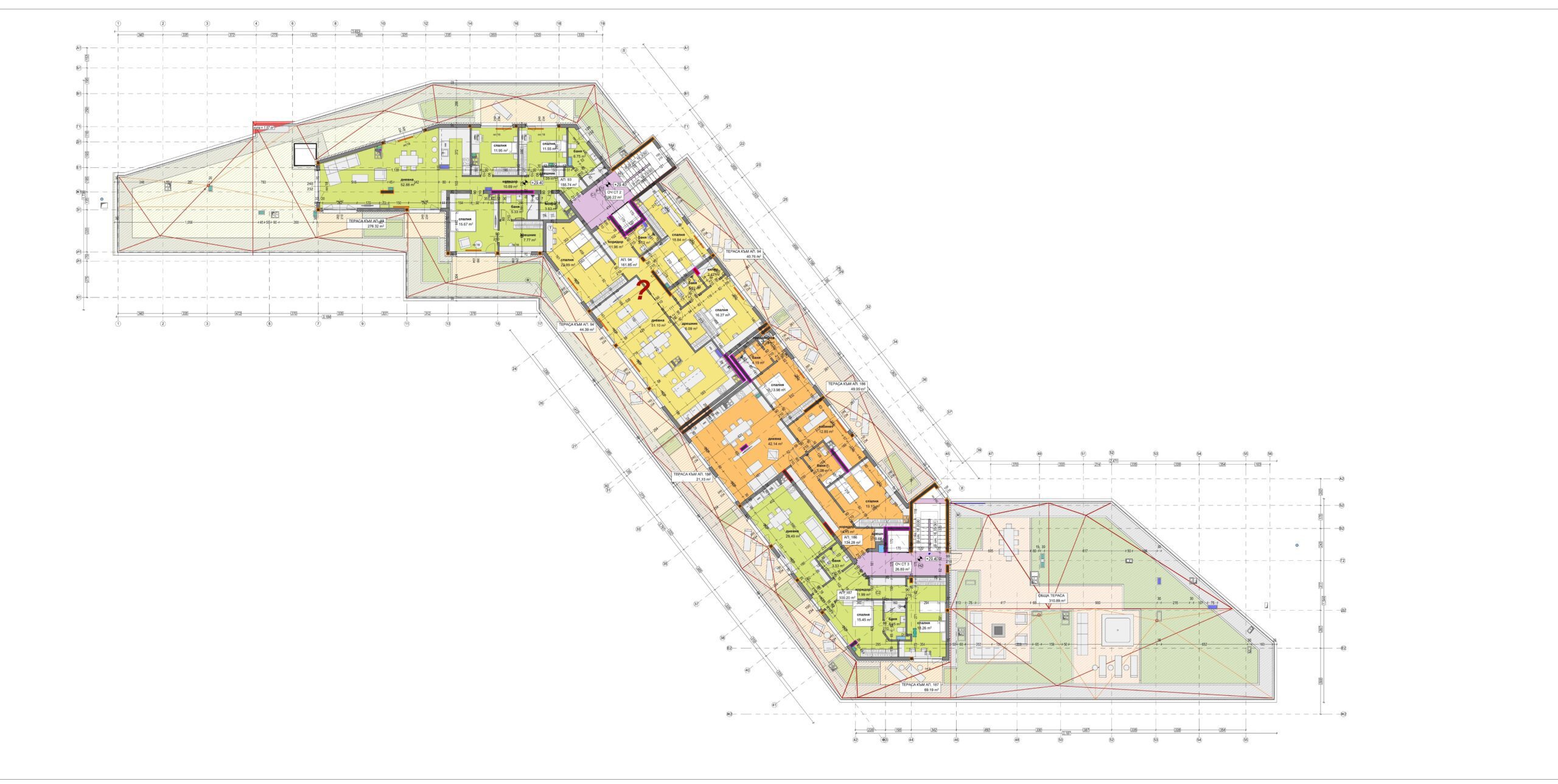
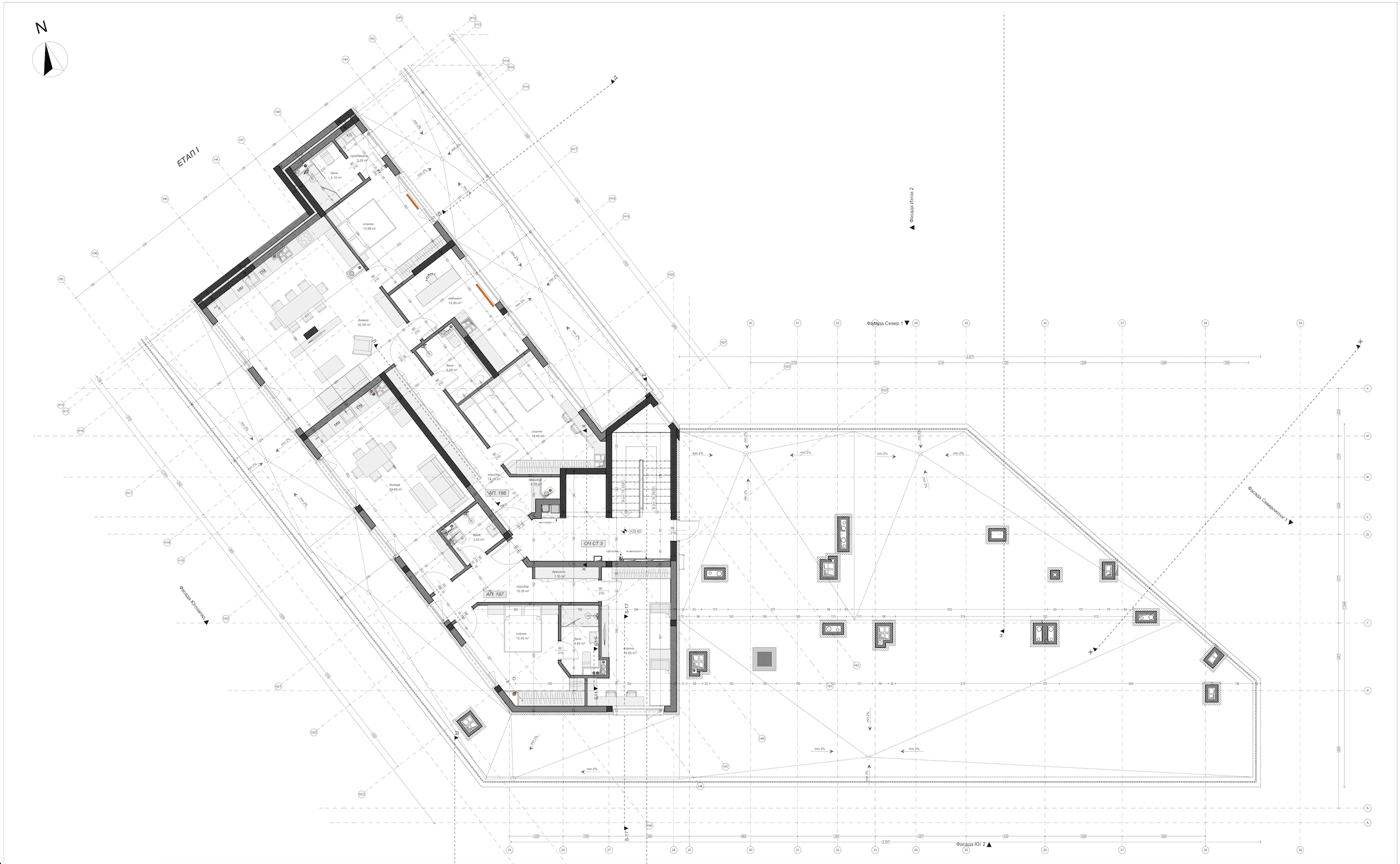
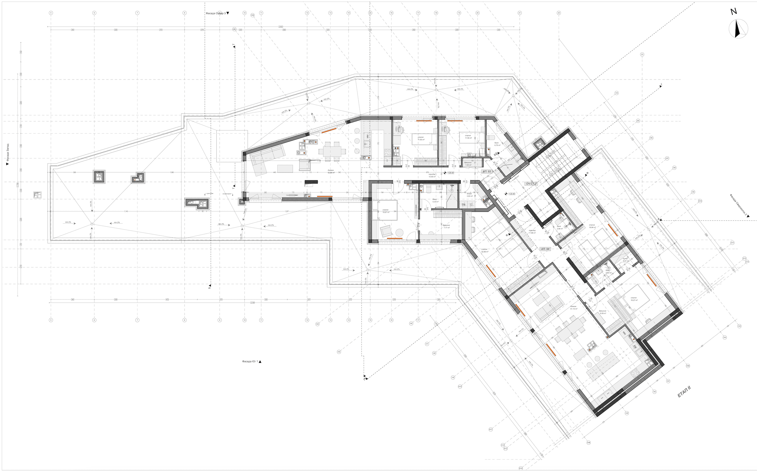
Примерни площи:
〈 2-стайни апартаменти от 50 до 75 м2 застроена площ 〉
〈 3-стайни апартаменти от 82 до 137 м2 застроена площ 〉
〈 4-стайни апартаменти от 112 до 195 м2 застроена площ 〉
Локация – непосредствено до Технополис Младост и Sport Depot, както и на 900 метра от метростанция „Бизнес парк“
Точна локация на обекта: https://goo.gl/maps/
Разпределения, свободни апартаменти и цени!
ИЗПЪЛНЕНИЕ:
ИЗОЛАЦИЯ: За външната зидария се използват тухли Wienerberger Poroterm N+F, а за вътрешната – тухли Wienerberger Forati. Те са от най-висок клас и имат отлични топлоизолационни и шумоизолационни свойства. В тази сграда е приложена технологията XPS с дебелина 10 см, която осигурява над 40% енергоспестяване.
ДОГРАМА: Дограмата е 6-камерна, с немски обков от марката Siegenia. Стъклата са четирисезонни, с газ аргон в средата и K стъкло от вътрешната страна. Тази дограма също осигурява над 40% енергоспестяване и висока степен на шумоизолация.
ОБЩИ ЧАСТИ: Стълбището има изцяло естествена настилка от мрамор или гранит, а асансьорите са от висок клас марка „ОРОНА“ или друга подобна. Стените са с гипсова шпакловка, в бани и тоалетни – с вароциментова мазилка, таваните – с гипсова шпакловка, а подовата настилка е циментова замазка. Има външна блиндирана врата, изградена ел. инсталация по проект, изградена ВиК на тапа с монтирани водомери, изградена ОиВ по проект с монтирани вертикални щрангове и монтирана хоризонтална мрежа в сутерените и по етажите, без радиатори и апартаментни колектори. Терасите и балконите са с хидроизолация и гранитогрес. Осигурени са телефонна, домофонна система, окабеляване за СОТ и Интернет.
Отоплението ще бъде решено с ТЕЦ + изградени инсталации за климатик.
Свържете се с нас
РЕЗЕРВАЦИИ:
Обадете се на :
Димитър Кулов
Тел: 0893 29 29 29
Имейл: mladostsales@gmail.com
Резервационна такса:
3 000 EUR на 2 – ст апартамент
5000 EUR на 3 – ст или 4 – ст апартамент




















